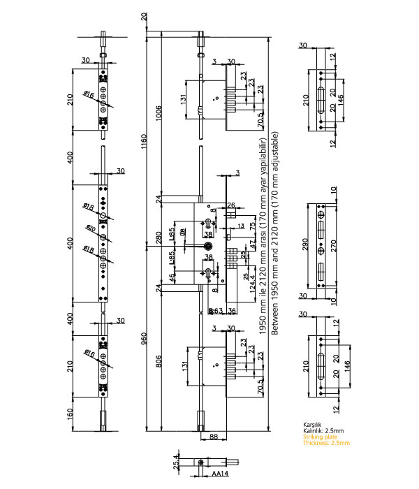
256




MULTİSİSTEM MERKEZİ ÇELİK KAPI KİLİDİ.RULMANLI.

Teknik Bilgiler

  • Gövde: Çelik.Galvaniz kaplamalı.
  • Ayna ve Karşılık: Çelik.Krom kaplamalı.Aynasız montaja uygun.
  • Sürgü: Çelik.Üç turlu.Krom kaplamalı.
  • Mandal: Çelik.Krom kaplamalı.
  • Rozet: Delinmeye mukavim sertleştirilmiş çelik.Pirinç kaplamalı.TS EN 12209
Kod 256
Silindir
164 BM - 164 GNC
Birim Ağırlığı
5290 gr.
Koli İçi Adeti 4
Koli Ölçüsü 94X21X17.5 cm
Koli Ağırlığı
21160 gr.